一、模块介绍
CB1241RS485 可允许 S71200 CPU 通过该模块连接到别的 Modbus 设备,实现 S71200 ModbusRTU 主站通讯功能。
CB1241 RS485 模块还支持 USS、点对点 PtP 等通讯连接。该模块外型如下图所示。

CB1241 RS485 模块所配接线端子及使用时接线如下所示:

二、组态介绍
本例以 S71200 CPU1215DC/DC V4.0 CPU 安装 CB1241RS485 模块带两台 CT Uni-SP 驱动器 为例介绍。

1、打开 TIA V13 软件,新建项目,指定项目名及存储路径。点击“左侧资源管理器窗口”
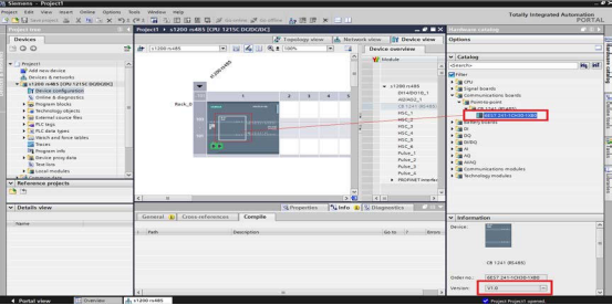
中的“添加新设备”选择添加 CPU 类型。本例选择 S71200 1215DC/DC CPU,从窗口右侧硬 件列表中将选择 CPU 型号及硬件版本,然后拖入 1 号插槽中完成 CPU 添加。
然后在右侧硬 件列表中选择“通讯板”---“point to point”下选择 CB1241,选择固件版本,然后拖入 CPU 模块上唯一的 CB 插槽完成硬件添加。同时设置 CPU 以太网口 IP
地址、CPU 其它相关参数。

2、连接通讯线。


SP 端接线图
三、编程及编译下载。
1、编程。TIA 软件中包含 S71200 modbusRTU 主站通讯程序包,应用时只需正确调用并设置 参数即可。TIA 库中 ModbusRTU 包含三条指令(Modbus_Comm_Load、Modbus_Master、 Modbus_Slave ), CB1241 ModbusRTU 主 站 通 讯 使 用 “ Modbus_Comm_Load ” 和
“Modbus_Master”两个通讯块。其中“Modbus_Comm_Load”块只需调用一次对 Modbus 通讯端口进行初始化,通常在首次扫描时执行即可。“Modbus_Master”块用于主站
读写从 站模块的寄存器数据。

在窗口左侧项目列表中选择“程序块”—“添加程序”添加一个 FC 块和两个全局 DB 块,FC 块编写通讯程序,DB 块分别存储两台驱动器写入和读取的数据。双击打开 FC 块
进 入程序编写界面,在右侧指令下找到“MODBUS”下找到“Modbus_Comm_Load”和
“Modbus_Master”。调用“Modbus_Comm_Load”指令时会要求建背景数据块,用自动建 背景数据块即可,然后根据具体通讯要求设通讯参数即可。调用“Modbus_Master”
微信扫一扫
关注公众号
18150066586 3004636837@qq.com 0591-87578810
15306977124 3004993430@qq.com 0591-83851589
15306977204 2851617306@qq.com 0591-88075780
15306977014 2851617301@qq.com 0591-87580173
18005007289 2851617310@qq.com 0591-87722515
15306977484 2851617304@qq.com 0591-83855060
18065057209 2881507050@qq.com 0591-22875422
15306977024 2851617309@qq.com 0591-83532940
15306977134 2851617313@qq.com 0591-83841178
15306977494 2851617303@qq.com 0591-83855720